фрезы и комплекты фрез по дереву
Комплект фрез для оцилиндровки бруса ИБЕРУС-КИЕВ
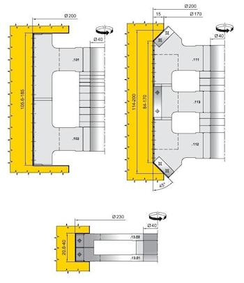
 В комплект фрез для обработки оцилиндрованного бруса входят фреза для оцилиндровки 70.4632.00, фреза для фрезеровки продольного укладочного паза 70.4106.00, фреза для вырезки чашек 80.4795.00.
   В комплект фрез для обработки оцилиндрованного бруса входят фреза для оцилиндровки 70.4632.00, фреза для фрезеровки продольного укладочного паза 70.4106.00, фреза для вырезки чашек 80.4795.00.Все фрезы оснащены стальными ножами для работы по преимущественно влажной древесины с высокой нагрузкой.
Параметры фрез могут быть изменены в зависимости от диаметра оцилиндрованного бруса, а также адаптированы для работы на конкретном оборудовании клиента.
по типу станков
фрезы для специальных станков
Если вы хотите купить комплект фрез для оцилиндровки бруса ИБЕРУС-КИЕВ  , вы можете:
 
